GRENOBLE : Quai Xavier Jouvin
Magnifique dernier étage de 88 m2 habitables avec vue imprenable…
288,000€
Grenoble
En Vente
250,000€
Référence :
0672
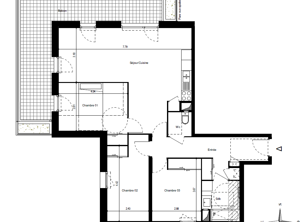
Dans une copropriété de 2023, l’agence Prestige Transaction vous présente ce superbe T4 de 86m2 lumineux avec une terrasse de 30 m2.
Avec une double exposition Sud et Est, vous bénéficierez de très belle vue sur les montagnes.
Situé au 4ème étage avec ascenseur d’un immeuble a haute performance énergétique.
L’appartement se compose d’une grande pièce de vie avec cuisine ouverte et accès à la grande terrasse.
Un couloir dessert 3 chambres avec placards, une salle de bain et un WC.
Equipements : Chauffage individuel gaz, doubles vitrages avec volets électriques, porte blindée.
L’appartement est vendu avec un garage dans la copro en sus du prix : 15 000 €
Charges copro : 139 € / mois (garage inclus)
Taxe foncière : 3200 € /an (garage inclus)
Magnifique dernier étage de 88 m2 habitables avec vue imprenable…
288,000€
L’agence PRESTIGE TRANSACTION vous propose en exclusivité ce T2 de…
95,000€
Grenoble : Les jardins de l’empereur Dans une résidence fermée…
154,000€
VOUS ÊTES PLUTÔT ?
Prestige Transaction est une marque du Groupe Prestige
GRENOBLE : Caserne de Bonne
Owning a home is a keystone of wealth… both financial affluence and emotional security.
Suze Orman